Services​

Conception sur mesure

Maxiprocess vous accompagne dès l’expression de votre besoin jusqu’à la réalisation complète de votre solution. Qu’il s’agisse d’optimiser un équipement, d’améliorer un procédé existant ou d’intégrer une nouvelle technologie, notre équipe technique met son expertise à votre service pour concevoir des solutions fiables, performantes et adaptées à vos objectifs.
Crop unrecognizable mechanic holding magnifying glass on paper with airplane drawing while working on project on tablet in aircraft factory

01. Simulation numérique

FEA & CFD

Calcul des cuves sous pression selon les codes réglementaires​ ASME
Calcul numérique par éléments finis (FEA)
Transfert de chaleur dans les corps solides ​
Calcul en statique linéaire et non linéaire ​
Réponse transitoire dynamique, vibratoire et sismique​
Calcul numérique en dynamique des fluides (CFD) pour les different types de mélangeurs​
Visualisation des flux dans la cuve
Calcul des taux de cisaillement dans la cuve
Visualisation du mouvement de la surface liquide
Calcul et analyse des variations de pression
Calcul d’échange thermique et observation des variations de température dans la cuve
Temps de mélange
Analyse du mouvement des particules dans la cuve agitée
Taux d’homogénéisation
Interaction fluide-structure
Rapport de calcul

02. Conception mécanique​

Modélisation 3D

Conception 3D
Outils d’optimisation
Conception générative
Conception paramétrique (VBA)
Études et analyse des multi-corps dynamique​
Développement et optimisation des produits
Visuels 3D
Revue de conception
Conception surfacique
Conception métal en feuille
Tuyauterie 3D

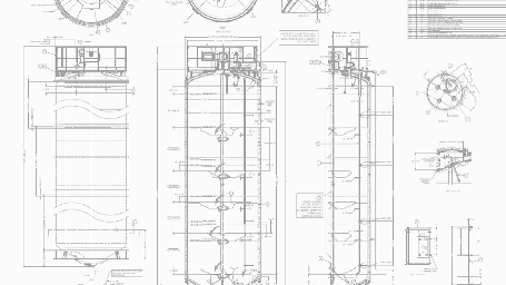
03. Mises en plans

Dessins

Dessins d’ingénieries
Dessins de fabrications​
Dessins de présentations ​
Développement des pièces de tôleries ​
Analyse des P&ID et des spécifications​
Dessins de P&ID
Dessins des cuves sous pression selon les normes réglementaires

04. Solutions produits

Nous sommes un bureau d’étude qui propose des solutions certifiées et hygiéniques. 
Nous proposons des solutions de raclage, de lavage, de protection et sécurité des cuves. Nous nous engageons dans la détermination des équipements et nous garantissons leur performance. 
Nous sommes spécialisé dans l’étude, conception et la fabrication des mélangeurs et agitateurs industriels.
Nous concevons des cuves et des systèmes d’agitation sur mesure, adaptés aux besoins spécifiques de chaque client, garantissant ainsi une efficacité optimale dans leurs processus industriels. ​
Équipements de procédés 3A sur mesure. ​

nos games de solutions

Convoyage sanitaire
Cuves de procédés
dosage automatique
Agitateurs
Lavages & Désinfection
Équipements fromagers